Quadrilocale in vendita

Canale Monterano, Via dei Tinelli - Montevirginio
€ 70.000
4 locali 4 locali
75 Mq 75 Mq
2 bagni 2 bagni

Quadrilocale in vendita

Canale Monterano, Via dei Tinelli - Montevirginio

Descrizione annuncio

Appartamento in zona centrale con possibilità di personalizzazione

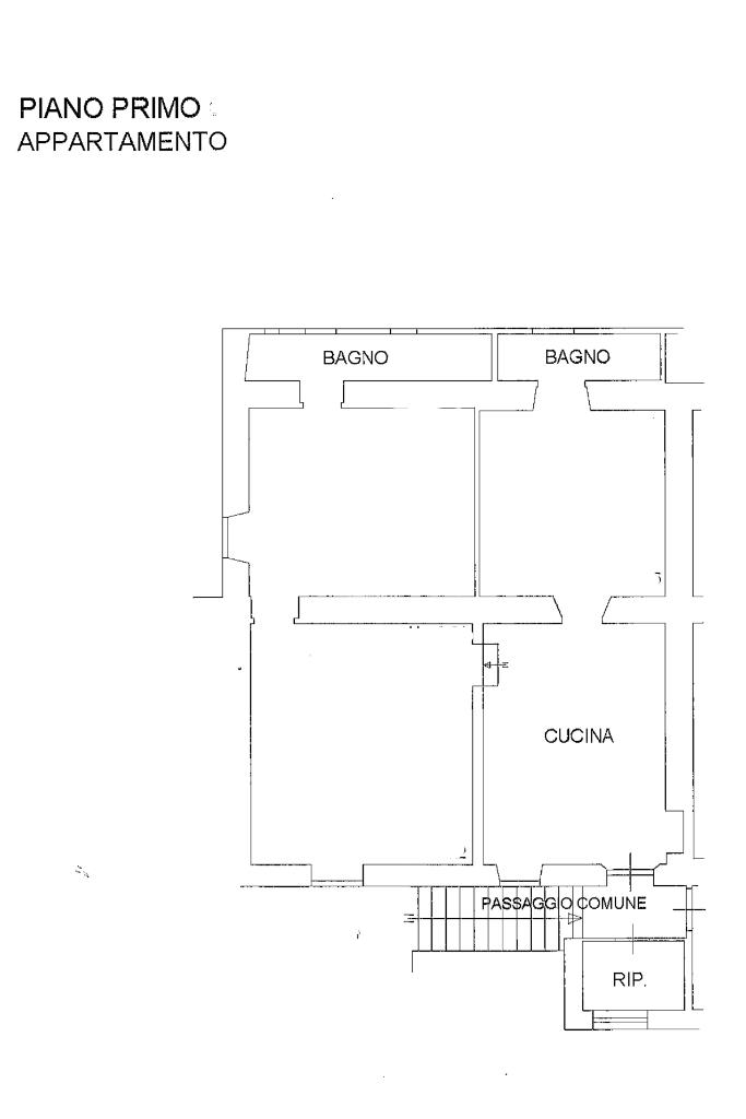
Nel centro del borgo di Montevirginio, frazione di Canale Monterano, proponiamo in vendita un appartamento di circa 70 mq situato al primo piano di un edificio con sole due unità abitative.

Il vero valore di questa proposta è la posizione: una zona tranquilla ma ben collegata ai principali centri come Bracciano, Manziana e Oriolo Romano, tutti facilmente raggiungibili e dotati di ogni servizio.

L’immobile è da ristrutturare, condizione che offre la libertà di ridistribuire gli spazi e creare un’abitazione su misura.
La disposizione attuale prevede una cucina con camino, soggiorno, due camere matrimoniali entrambe con bagno privato e un pratico locale lavanderia esterno all’ingresso.

Completano la proprietà una cantina di 30 mq, utile come deposito, e una porzione di giardino di pertinenza, ideale come spazio verde privato, area relax o piccolo orto.

Una proposta con potenziale, perfetta per chi cerca una soluzione da personalizzare nel cuore di Montevirginio, in un’area dal fascino storico e con prezzi più accessibili rispetto alle zone limitrofe del lago.

Contattaci per scoprire il potenziale di questo appartamento!

Mostra tutto

Nelle vicinanze

Trasporto pubblico Trasporto pubblico
Oriolo
Oriolo
2,2 Km
Manziana - Canale Monterano
Manziana - Canale Monterano
2,6 Km
Trasporto pubblico
70 m
Scuole Scuole
Scuola secondaria S. Rosa Venerini
910 m
Scuola primaria Alessandro Manzoni
1,6 Km
Scuole
2,0 Km
Farmacia Farmacia
Farmacia Ricci
1,5 Km
Farmacia Marini Dr. Paola
2,3 Km
Supermercati Supermercati
Euro Spin
2,1 Km
Conad
2,1 Km
MD Discount
2,3 Km
Supermercati
2,4 Km
Negozi Negozi
Market
1,4 Km
Il Forno di Pierino
1,8 Km
Midas Sport
2,2 Km
Panificio Baldassarini Manziana
2,8 Km
Bar Bar
Bar Monte
60 m
Bar
700 m
Fuori Porta
1,3 Km
Meridiana Caffe
1,5 Km
Centro Polivalente
2,0 Km
Ristoranti Ristoranti
La Tavernetta - Ristorante/Pizzeria
20 m
Locanda Dell' Orsa Maggiore
1,5 Km
Jerry Due
1,9 Km
La Fonderia
2,0 Km
Texas BBQ Grill
2,1 Km
Mostra tutto

Caratteristiche

Rif.:
61121190
Piano:
1 di 1 (Piano medio)
Camere da letto:
2
Arredamento:
Assente
Condizionamento:
Assente
Ascensore:
No
Mostra tutto
Prezzo Prezzo
€ 70.000
Rata mutuo Rata mutuo
€ 333 / mese
Spese annue Spese annue
€ 0
Proponi il tuo prezzoProponi il tuo prezzo

Classe Energetica

Questo immobile è esente da classe energetica
Anno di costruzione:
1967
Riscaldamento:
Autonomo
Tipo impianto:
A radiatori
Tipo alimentazione:
Metano

Ti interessa visionare l'immobile?

Fissa un appuntamento  Fissa un appuntamento

Richiedi informazioni

Clicca su Leggi per aprire l'informativa
* Questi campi sono obbligatori

Calcola il tuo mutuo

Semplice e senza impegno
Anticipo

( % )
Mutuo

( % )

pochi semplici passi

inserisci i tuoi dati
Questionario completato
Grazie per aver richiesto un appuntamento senza impegno con un nostro Consulente del Credito e Assicurativo.

Hai inserito correttamente tutti i dati necessari e a breve riceverai una e-mail con un link da convalidare per inviare i tuoi dati.
Affiliato
Immobiliare Manziana Due Srl
Corso Vittorio Emanuele, 134 00066 Manziana (RM)

Il nostro staff


  • Matteo Saraconi
    Affiliato

  • Stefano Emili
    Responsabile

  • Bianca Manole
    Coordinatrice

  • Alessandro Montanucci
    Collaboratore

  • Alessia Morise
    Collaboratrice

  • Lorenzo Pisana
    Collaboratore

  • Valentina Riggi
    Collaboratrice

  • Alessia Tomita
    Coordinatrice
Corso Vittorio Emanuele, 134 00066 Manziana (RM)
Zona: Manziana-Oriolo Romano-Canale
Mostra su mappa
Orari: Dal Lunedì al Venerdì 09.00 alle 19.00 Sabato dalle 09.30 alle 18.00
Affiliato
Immobiliare Manziana Due Srl
Corso Vittorio Emanuele, 134 00066 Manziana (RM)

2026 Tecnocasa Franchising S.p.A. - P. IVA 08365160152 - Via Monte Bianco 60/A 20089 Rozzano (MI). Ogni agenzia ha un proprio titolare ed è autonoma. Privacy policy | Policy utilizzo | Cookie policy