5 locali in vendita

Manziana, Via O. Carlandi
€ 125.000
Prezzo aggiornato
5 locali 5 locali
100 Mq 100 Mq
2 bagni 2 bagni

5 locali in vendita

Manziana, Via O. Carlandi

Descrizione annuncio

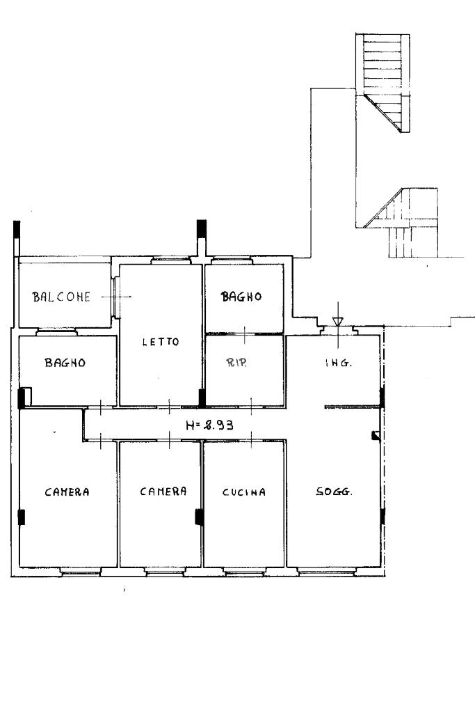
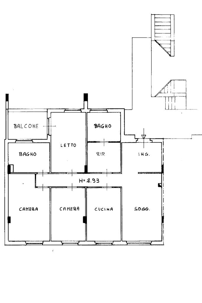
Appartamento piano terra di ampia metratura con posto auto e cantina.

In posizione comoda e vicina ai principali servizi, proponiamo in vendita un appartamento di 100 mq situato al piano terra, completo di posto auto privato.

L’immobile si sviluppa su un unico livello ed è composto da un ampio e luminoso salone. Attraverso un disimpegno si accede alla cucina abitabile, a un antibagno sfruttabile come zona lavanderia e a un primo bagno finestrato con box doccia.

La zona notte comprende due camere matrimoniali, di cui una con accesso diretto al terrazzino tramite porta finestra, una terza camera e un secondo bagno finestrato con vasca.

Completano la proprietà una cantina e un posto auto riservato.

Grazie alla sua posizione strategica e alla funzionalità degli spazi, questa soluzione è ideale sia come prima casa sia come investimento.

Mostra tutto

Nelle vicinanze

Trasporto pubblico Trasporto pubblico
Manziana - Canale Monterano
Manziana - Canale Monterano
1,2 Km
Trasporto pubblico
80 m
Scuole Scuole
Scuole
1,6 Km
Scuola secondaria S. Rosa Venerini
2,4 Km
Farmacia Farmacia
Farmacia Ricci
610 m
Farmacia Marini Dr. Paola
1,8 Km
Supermercati Supermercati
MD Discount
600 m
Supermercati
720 m
Carrefour
2,0 Km
Negozi Negozi
Midas Sport
630 m
Panificio Baldassarini Manziana
1,1 Km
OVS
2,0 Km
Market
2,7 Km
Bar Bar
Centro Polivalente
1,6 Km
Bar Monte
1,7 Km
Special Bar
1,8 Km
Bar
1,8 Km
Fuori Porta
2,7 Km
Ristoranti Ristoranti
La Pergola da Camillo
550 m
Ristorante La Pergola
550 m
Trattoria "Il Sorcetto"
1,1 Km
La Tavernetta - Ristorante/Pizzeria
1,7 Km
Ristorante Manturna
1,8 Km
Mostra tutto

Caratteristiche

Rif.:
61091347
Piano:
Terra di 1
Totale piani:
1
Posti auto:
1
Terrazzi:
1
Camere da letto:
3
Mostra tutto
Prezzo Prezzo
€ 125.000
Rata mutuo Rata mutuo
€ 555 / mese
Spese annue Spese annue
€ 300
Proponi il tuo prezzoProponi il tuo prezzo
Immobile valutato con TecnoValore

Classe Energetica

Questo immobile è esente da classe energetica
Anno di costruzione:
1986
Riscaldamento:
Autonomo
Tipo impianto:
A radiatori
Tipo alimentazione:
Metano

Prezzo ridotto di €1 (14%%)

Ti interessa visionare l'immobile?

Fissa un appuntamento  Fissa un appuntamento

Richiedi informazioni

* Questi campi sono obbligatori

Calcola il tuo mutuo

Semplice e senza impegno
Anticipo

( % )
Mutuo

( % )

pochi semplici passi

inserisci i tuoi dati
Questionario completato
Grazie per aver richiesto un appuntamento senza impegno con un nostro Consulente del Credito e Assicurativo.

Hai inserito correttamente tutti i dati necessari e a breve riceverai una e-mail con un link da convalidare per inviare i tuoi dati.
Affiliato
Immobiliare Manziana Due Srl
Corso Vittorio Emanuele, 134 00066 Manziana (RM)

Il nostro staff


  • Matteo Saraconi
    Affiliato

  • Stefano Emili
    Responsabile

  • Alessia Morise
    Collaboratrice

  • Lorenzo Pisana
    Collaboratore

  • Valentina Riggi
    Collaboratrice

  • Alessia Tomita
    Coordinatrice
Corso Vittorio Emanuele, 134 00066 Manziana (RM)
Zona: Manziana-Oriolo Romano-Canale
Mostra su mappa
Orari: Dal Lunedì al Venerdì 09.00 alle 19.00 Sabato dalle 09.30 alle 18.00
Affiliato
Immobiliare Manziana Due Srl
Corso Vittorio Emanuele, 134 00066 Manziana (RM)

2025 Tecnocasa Franchising S.p.A. - P. IVA 08365160152 - Via Monte Bianco 60/A 20089 Rozzano (MI). Ogni agenzia ha un proprio titolare ed è autonoma. Privacy policy | Policy utilizzo | Cookie policy