Villa singola in vendita

Manziana, Via dei Pontoni
€ 399.000
5 locali 5 locali
200 Mq 200 Mq
2 bagni 2 bagni

Villa singola in vendita

Manziana, Via dei Pontoni

Descrizione annuncio

Villa ecosostenibile in Classe energetica A4 con dependance e terreno

Proponiamo in vendita una villa indipendente immersa nella campagna, realizzata secondo standard moderni ed ecosostenibili.
Una proprietà che non si limita ad offrire una casa, ma un vero progetto di vita e investimento.

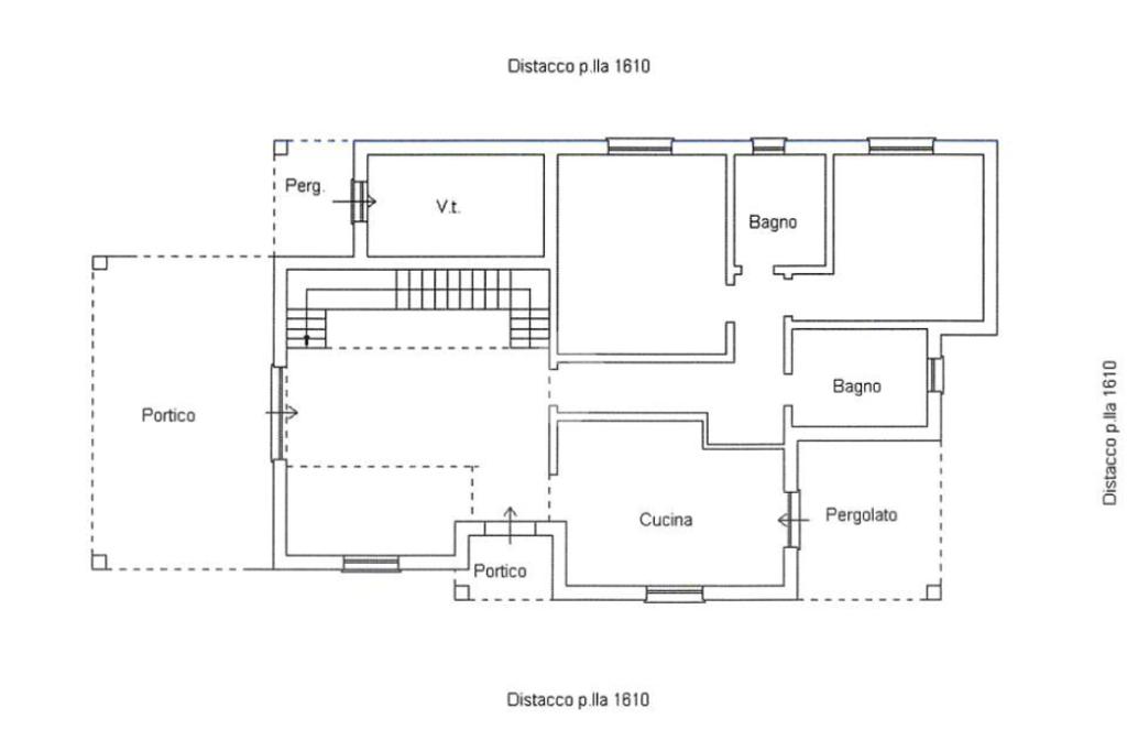
La villa principale, sviluppata su un unico livello, presenta una disposizione funzionale e classica, valorizzata da grandi aperture che mettono in comunicazione gli interni con il verde circostante.
Portici, spazi esterni e rifiniture curate permettono di vivere la natura in ogni stagione con comfort e qualità.

Le finiture, come si evince dalle foto, sono di assoluto livello: pavimento in legno di quercia naturale, impianto radiante a pavimento per riscaldamento e raffreddamento, infissi con tripla vetro camera e pellicole solari, impianto d’allarme,
oltre a un impianto fotovoltaico da 20 kW con incentivi del conto termico e scambio sul posto.
A questi si aggiungono il pozzo con sistema di filtraggio, e un locale tecnico attrezzato con 8 batterie di accumulo,
pompa di calore e solare termico per la produzione di acqua calda sanitaria.

Un aspetto distintivo è la dependance indipendente da ultimare, che rappresenta un’opportunità strategica:
ideale per garantire autonomia ad un figlio, accogliere ospiti, oppure generare reddito con locazioni o attività agrituristica, sostenuta dall’ampia metratura del terreno e dall’ efficientamento energetico già presente.

Questa proprietà si rivolge a chi non ha l’esigenza di vivere vicino al centro, ma desidera una quotidianità fatta di privacy, contatto con la natura e qualità della vita, con una casa capace di ripagarsi nel tempo grazie all’efficienza energetica e al potenziale della seconda unità abitativa.

Se sei alla ricerca di ecosostenibilità e investimento, contattaci per saperne di più.

Mostra tutto

Nelle vicinanze

Trasporto pubblico Trasporto pubblico
Trasporto pubblico
1,7 Km
Mostra tutto

Caratteristiche

Rif.:
60892813
Piano:
1 di 1 (Piano terra)
Posti auto:
3
Camere da letto:
2
Arredamento:
Assente
Condizionamento:
Autonomo
Mostra tutto
Prezzo Prezzo
€ 399.000
Rata mutuo Rata mutuo
€ 1.880 / mese
Spese annue Spese annue
€ 0
Proponi il tuo prezzoProponi il tuo prezzo

Classe Energetica

A4
A4
A4
A4
A4
A4
A4
A4
A4
EP globale non rinnovabile:
4.55 kW h/m² anno
EP globale rinnovabile:
16.18 kW h/m² anno
EP invernale del fabbricato:
EP estiva del fabbricato:
Anno di costruzione:
2012
Riscaldamento:
Autonomo
Tipo impianto:
A pavimento
Tipo alimentazione:
Pannelli

Ti interessa visionare l'immobile?

Fissa un appuntamento  Fissa un appuntamento

Richiedi informazioni

Clicca su Leggi per aprire l'informativa
* Questi campi sono obbligatori

Calcola il tuo mutuo

Semplice e senza impegno
Anticipo

( % )
Mutuo

( % )

pochi semplici passi

inserisci i tuoi dati
Questionario completato
Grazie per aver richiesto un appuntamento senza impegno con un nostro Consulente del Credito e Assicurativo.

Hai inserito correttamente tutti i dati necessari e a breve riceverai una e-mail con un link da convalidare per inviare i tuoi dati.
Affiliato
Immobiliare Manziana Due Srl
Corso Vittorio Emanuele, 134 00066 Manziana (RM)

Il nostro staff


  • Matteo Saraconi
    Affiliato

  • Stefano Emili
    Responsabile

  • Alessia Morise
    Collaboratrice

  • Lorenzo Pisana
    Collaboratore

  • Valentina Riggi
    Collaboratrice

  • Alessia Tomita
    Coordinatrice
Corso Vittorio Emanuele, 134 00066 Manziana (RM)
Zona: Manziana-Oriolo Romano-Canale
Mostra su mappa
Orari: Dal Lunedì al Venerdì 09.00 alle 19.00 Sabato dalle 09.30 alle 18.00
Affiliato
Immobiliare Manziana Due Srl
Corso Vittorio Emanuele, 134 00066 Manziana (RM)

2026 Tecnocasa Franchising S.p.A. - P. IVA 08365160152 - Via Monte Bianco 60/A 20089 Rozzano (MI). Ogni agenzia ha un proprio titolare ed è autonoma. Privacy policy | Policy utilizzo | Cookie policy