Porzione di bifamiliare in vendita

Manziana, Via Giuseppe Garibaldi
€ 189.000
4 locali 4 locali
130 Mq 130 Mq
3 bagni 3 bagni

Porzione di bifamiliare in vendita

Manziana, Via Giuseppe Garibaldi

Descrizione annuncio

Villa bifamiliare con posto auto e sfogo esterno al centro del paese.

Nel cuore del centro storico di Manziana, a pochi passi da tutti i principali servizi, proponiamo in vendita una villa bifamiliare di recente costruzione con ingresso indipendente e spazio esterno privato.

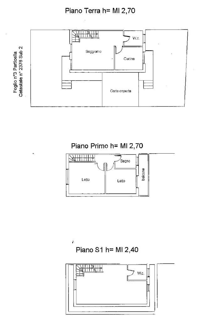
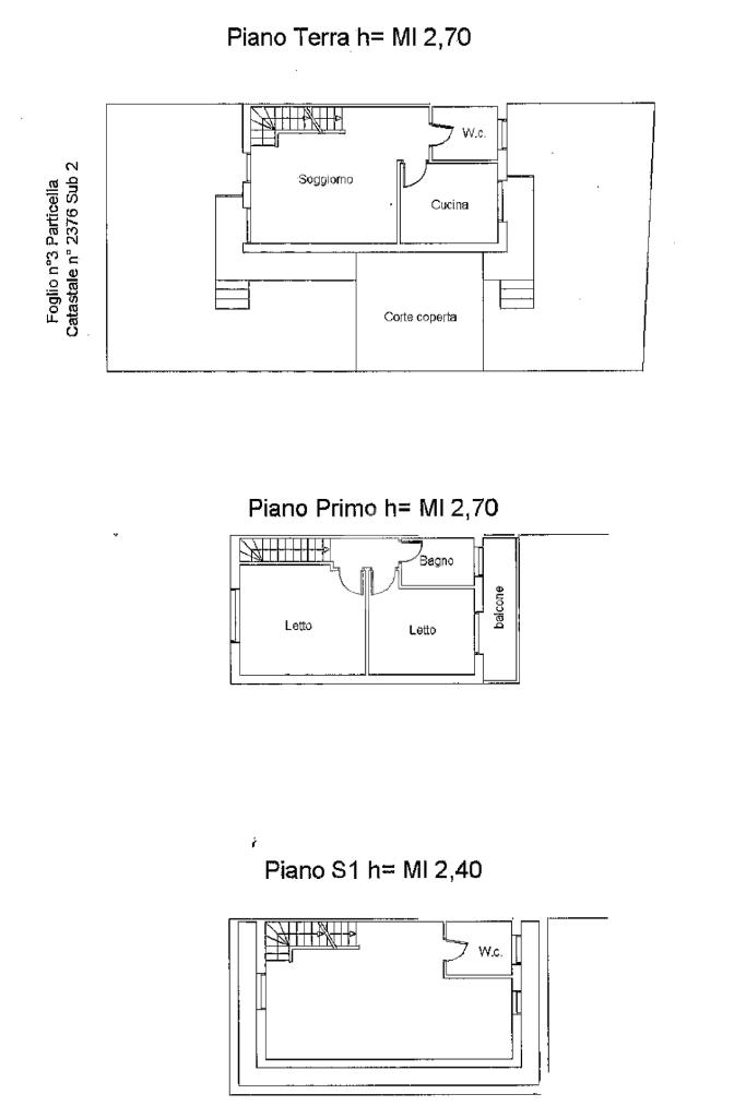
Al piano terra ci accoglie una luminosa zona giorno, valorizzata da una doppia esposizione che regala luce naturale a tutto l’ambiente.
Il soggiorno con angolo cottura dispone di doppi accessi allo spazio esterno: uno dall’ingresso principale, attraverso una doppia porta blindata, e uno dalla cucina, tramite una comoda portafinestra. Completa il piano un bagno finestrato con vasca.

Al primo piano si sviluppa la zona notte, composta da una camera matrimoniale e una cameretta con accesso diretto al balcone e un secondo bagno finestrato con doccia.

Il piano seminterrato ospita una zona openspace, perfetto come sala hobby o spazio multifunzionale, arricchito da bagno e ripostiglio.

Costruita nel 2008, la villa si presenta in ottime condizioni, è pronta da abitare sin da subito ed è dotata di solare termico, per un maggiore risparmio energetico e una gestione più sostenibile della casa.

Una soluzione ideale per chi cerca una prima casa comoda e funzionale, in posizione centrale, con la possibilità di vivere a pieno tutte le comodità del paese, senza rinunciare all’indipendenza e alla tranquillità.

Mostra tutto

Nelle vicinanze

Trasporto pubblico Trasporto pubblico
Manziana - Canale Monterano
Manziana - Canale Monterano
520 m
Trasporto pubblico
310 m
Scuole Scuole
Scuole
2,3 Km
Scuola secondaria S. Rosa Venerini
2,5 Km
Farmacia Farmacia
Farmacia Ricci
230 m
Farmacia Marini Dr. Paola
2,4 Km
Supermercati Supermercati
Supermercati
650 m
MD Discount
850 m
Carrefour
1,7 Km
Negozi Negozi
Midas Sport
230 m
Panificio Baldassarini Manziana
1,0 Km
OVS
1,7 Km
Market
2,8 Km
Bar Bar
Bar Monte
2,1 Km
Centro Polivalente
2,3 Km
Special Bar
2,4 Km
Bar
2,5 Km
Fuori Porta
2,8 Km
Ristoranti Ristoranti
Trattoria "Il Sorcetto"
750 m
La Pergola da Camillo
980 m
Ristorante La Pergola
990 m
La Tavernetta - Ristorante/Pizzeria
2,1 Km
Ristorante Manturna
2,5 Km
Mostra tutto

Caratteristiche

Rif.:
61100348
Piano:
3 di 3
Posti auto:
2
Balconi:
1
Camere da letto:
2
Arredamento:
Assente
Mostra tutto
Prezzo Prezzo
€ 189.000
Rata mutuo Rata mutuo
€ 839 / mese
Spese annue Spese annue
€ 0
Proponi il tuo prezzoProponi il tuo prezzo

Classe Energetica

Questo immobile è esente da classe energetica
Anno di costruzione:
2008
Riscaldamento:
Autonomo
Tipo impianto:
A radiatori
Tipo alimentazione:
Metano

Ti interessa visionare l'immobile?

Fissa un appuntamento  Fissa un appuntamento

Richiedi informazioni

* Questi campi sono obbligatori

Calcola il tuo mutuo

Semplice e senza impegno
Anticipo

( % )
Mutuo

( % )

pochi semplici passi

inserisci i tuoi dati
Questionario completato
Grazie per aver richiesto un appuntamento senza impegno con un nostro Consulente del Credito e Assicurativo.

Hai inserito correttamente tutti i dati necessari e a breve riceverai una e-mail con un link da convalidare per inviare i tuoi dati.
Affiliato
Immobiliare Manziana Due Srl
Corso Vittorio Emanuele, 134 00066 Manziana (RM)

Il nostro staff


  • Matteo Saraconi
    Affiliato

  • Stefano Emili
    Responsabile

  • Alessia Morise
    Collaboratrice

  • Lorenzo Pisana
    Collaboratore

  • Valentina Riggi
    Collaboratrice

  • Alessia Tomita
    Coordinatrice
Corso Vittorio Emanuele, 134 00066 Manziana (RM)
Zona: Manziana-Oriolo Romano-Canale
Mostra su mappa
Orari: Dal Lunedì al Venerdì 09.00 alle 19.00 Sabato dalle 09.30 alle 18.00
Affiliato
Immobiliare Manziana Due Srl
Corso Vittorio Emanuele, 134 00066 Manziana (RM)

2025 Tecnocasa Franchising S.p.A. - P. IVA 08365160152 - Via Monte Bianco 60/A 20089 Rozzano (MI). Ogni agenzia ha un proprio titolare ed è autonoma. Privacy policy | Policy utilizzo | Cookie policy