Porzione di bifamiliare in vendita

Oriolo Romano, Via Giacomo Matteotti
€ 210.000
6 locali 6 locali
125 Mq 125 Mq
3 bagni 3 bagni

Porzione di bifamiliare in vendita

Oriolo Romano, Via Giacomo Matteotti

Descrizione annuncio

Porzione di bifamiliare di recente costruzione con ampi spazi esterni

In un contesto residenziale tranquillo e riservato, a breve distanza dal centro di Oriolo, proponiamo in vendita una porzione di villa edificata nel 2004, circondata da un curato giardino perimetrale. La proprietà dispone di accesso carrabile automatico e di comodi spazi esterni utilizzabili sia come area relax sia come posti auto privati interni.

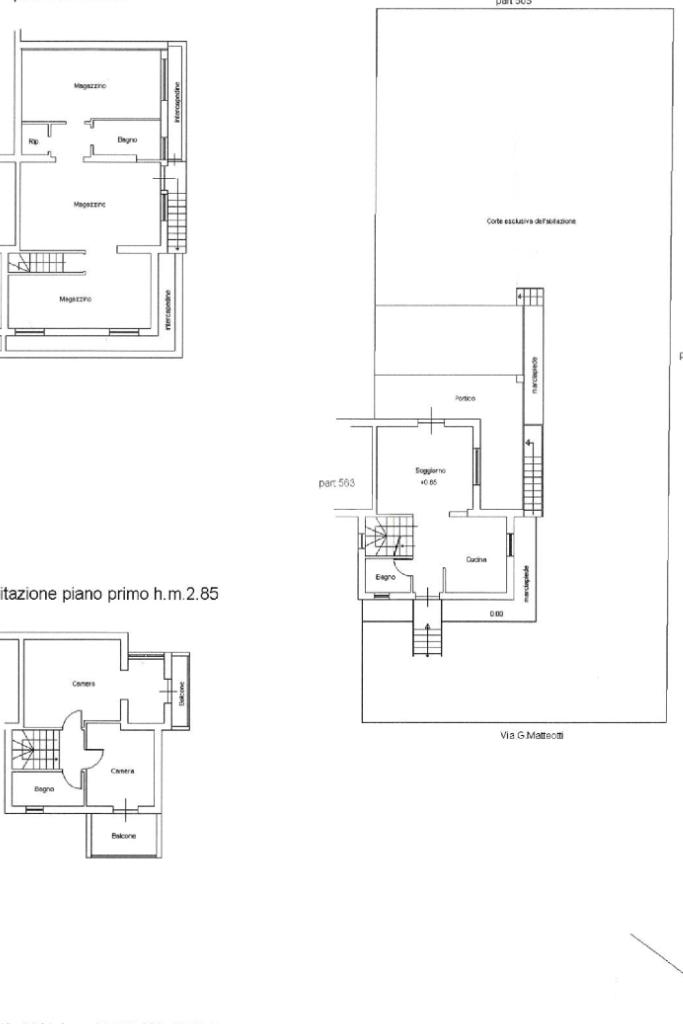
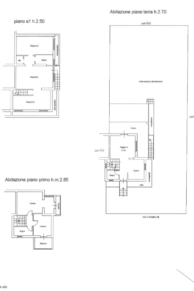
L’abitazione si sviluppa su tre livelli, con una distribuzione degli ambienti funzionale e ben organizzata.
Al piano terra l’ingresso conduce ad un luminoso soggiorno con angolo cottura, valorizzato da una doppia vetrata affacciata sul giardino, che dona luce naturale e un’atmosfera accogliente all’ambiente. Dalla zona giorno è inoltre presente un’uscita sullo spazio esterno posteriore, in parte coperto da una tettoia in legno e in parte adibito a giardino. Completa il piano un comodo bagno di servizio.

Il piano superiore, collegato da scala interna, ospita una camera matrimoniale con possibilità di realizzare una cabina armadio o uno studio, una cameretta e un bagno con doccia. Entrambe le camere dispongono di balcone privato con affaccio sul giardino e sul verde circostante

Il piano seminterrato rappresenta un valore aggiunto dell’immobile, grazie alla possibilità di essere utilizzato come unità abitativa indipendente, disponendo sia di ingresso autonomo sia di collegamento interno. Gli spazi comprendono un soggiorno con camino, una cucina abitabile con ampia zona lavanderia, una camera matrimoniale, un bagno finestrato con vasca e un comodo ripostiglio.

La metratura e la disposizione degli spazi rendono l’immobile particolarmente versatile e facilmente adattabile a diverse esigenze abitative, risultando ideale sia per famiglie sia per una giovane coppia, senza rinunciare alla comodità della vicinanza ai principali servizi.

Contattaci per maggiori informazioni o per fissare una visita.

Mostra tutto

Nelle vicinanze

Trasporto pubblico Trasporto pubblico
Oriolo
Oriolo
1,6 Km
Manziana - Canale Monterano
Manziana - Canale Monterano
2,8 Km
Trasporto pubblico
760 m
Scuole Scuole
Scuola secondaria S. Rosa Venerini
190 m
Scuola primaria Alessandro Manzoni
970 m
Scuole
2,8 Km
Farmacia Farmacia
Farmacia Ricci
730 m
Supermercati Supermercati
Euro Spin
1,5 Km
Conad
1,6 Km
MD Discount
2,8 Km
Supermercati
2,8 Km
Negozi Negozi
Market
590 m
Il Forno di Pierino
1,1 Km
Midas Sport
2,5 Km
Bar Bar
Bar
290 m
Fuori Porta
560 m
Meridiana Caffe
740 m
Bar Monte
750 m
Centro Polivalente
2,8 Km
Ristoranti Ristoranti
Locanda Dell' Orsa Maggiore
760 m
La Tavernetta - Ristorante/Pizzeria
800 m
Jerry Due
1,3 Km
La Fonderia
1,4 Km
Broccoletti
1,5 Km
Mostra tutto

Caratteristiche

Rif.:
61171688
Piano:
3 di 3 (Piano su più livelli)
Posti auto:
3
Balconi:
2
Camere da letto:
3
Arredamento:
Assente
Mostra tutto
Prezzo Prezzo
€ 210.000
Rata mutuo Rata mutuo
€ 990 / mese
Spese annue Spese annue
€ 0
Proponi il tuo prezzoProponi il tuo prezzo

Classe Energetica

G
G
G
G
G
G
G
G
G
EP globale non rinnovabile:
185.99 kW h/m² anno
EP globale rinnovabile:
185.99 kW h/m² anno
EP invernale del fabbricato:
EP estiva del fabbricato:
Anno di costruzione:
2004
Riscaldamento:
Autonomo
Tipo impianto:
A radiatori
Tipo alimentazione:
GPL

Ti interessa visionare l'immobile?

Fissa un appuntamento  Fissa un appuntamento

Richiedi informazioni

Clicca su Leggi per aprire l'informativa
* Questi campi sono obbligatori

Calcola il tuo mutuo

Semplice e senza impegno
Anticipo

( % )
Mutuo

( % )

pochi semplici passi

inserisci i tuoi dati
Questionario completato
Grazie per aver richiesto un appuntamento senza impegno con un nostro Consulente del Credito e Assicurativo.

Hai inserito correttamente tutti i dati necessari e a breve riceverai una e-mail con un link da convalidare per inviare i tuoi dati.
Affiliato
Immobiliare Manziana Due Srl
Corso Vittorio Emanuele, 134 00066 Manziana (RM)

Il nostro staff


  • Matteo Saraconi
    Affiliato

  • Stefano Emili
    Responsabile

  • Bianca Manole
    Coordinatrice

  • Alessandro Montanucci
    Collaboratore

  • Alessia Morise
    Collaboratrice

  • Lorenzo Pisana
    Collaboratore

  • Valentina Riggi
    Collaboratrice

  • Alessia Tomita
    Coordinatrice
Corso Vittorio Emanuele, 134 00066 Manziana (RM)
Zona: Manziana-Oriolo Romano-Canale
Mostra su mappa
Orari: Dal Lunedì al Venerdì 09.00 alle 19.00 Sabato dalle 09.30 alle 18.00
Affiliato
Immobiliare Manziana Due Srl
Corso Vittorio Emanuele, 134 00066 Manziana (RM)

2026 Tecnocasa Franchising S.p.A. - P. IVA 08365160152 - Via Monte Bianco 60/A 20089 Rozzano (MI). Ogni agenzia ha un proprio titolare ed è autonoma. Privacy policy | Policy utilizzo | Cookie policy