Quadrilocale in vendita

Vejano, Via della croce
€ 85.000
Prezzo aggiornato
4 locali 4 locali
95 Mq 95 Mq
2 bagni 2 bagni

Quadrilocale in vendita

Vejano, Via della croce

Descrizione annuncio

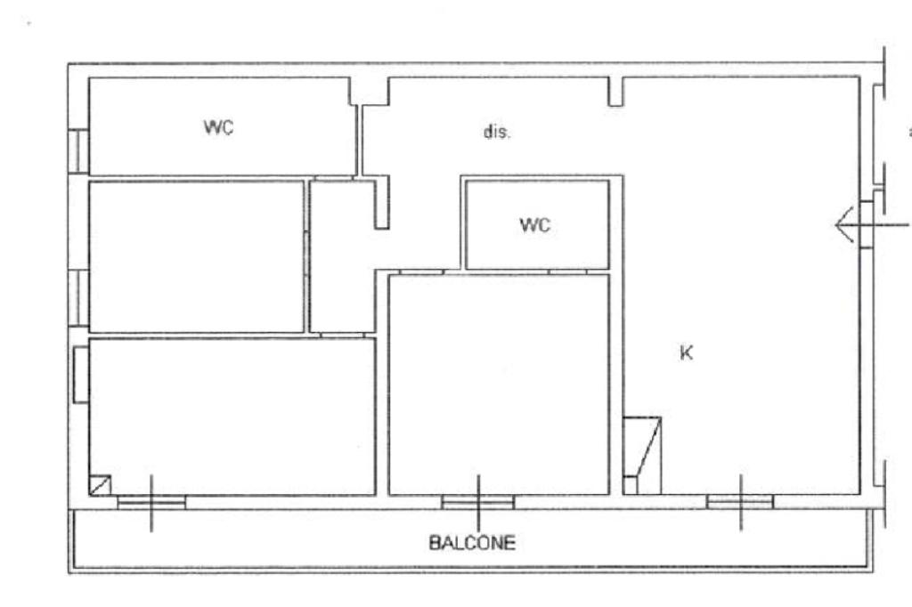
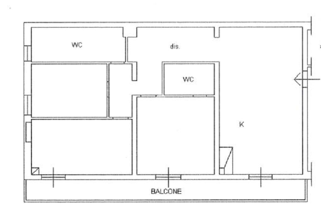
Appartamento di 95 mq pronto da vivere con affaccio sul verde.

In una zona tranquilla e a pochi passi dal corso principale di Vejano, proponiamo in vendita un luminoso appartamento al secondo piano, caratterizzato da spazi ampi e ben distribuiti e da un piacevole affaccio sul verde.

L’ingresso conduce a una zona giorno open accogliente, composta da soggiorno con cucina a vista, camino tradizionale e idro stufa a pellet, che contribuisce al riscaldamento dell’abitazione creando un’atmosfera calda e conviviale. Dalla zona giorno si accede inoltre al balcone, con vista aperta sul verde circostante.

La zona notte è composta da due camere matrimoniali, di cui una con bagno en suite, una cameretta e un bagno finestrato completo di doccia e vasca.

A completare la proprietà troviamo una porzione di cantina e una parte di terreno retrostante l’immobile, ideale come orto o spazio esterno da vivere.

Una soluzione ideale per chi cerca comfort, tranquillità e metrature generose, senza rinunciare alla vicinanza al centro e ai principali servizi del paese.

Contattaci per scoprire il potenziale di questo appartamento!

Mostra tutto

Nelle vicinanze

Scuole Scuole
Scuole
510 m
Farmacia Farmacia
Farmacia
580 m
Bar Bar
Zago Bar
200 m
Ristoranti Ristoranti
Al Capifuoco
290 m
Borgo di Sant'Orsio
1,1 Km
Mostra tutto

Caratteristiche

Rif.:
61153379
Piano:
2 di 1 (Piano medio)
Posti auto:
2
Balconi:
1
Camere da letto:
3
Condizionamento:
Assente
Mostra tutto
Prezzo Prezzo
€ 85.000
Rata mutuo Rata mutuo
€ 404 / mese
Spese annue Spese annue
€ 0
Proponi il tuo prezzoProponi il tuo prezzo

Classe Energetica

Questo immobile è esente da classe energetica
Anno di costruzione:
1975
Riscaldamento:
Autonomo
Tipo impianto:
A radiatori
Tipo alimentazione:
Metano

Prezzo ridotto di €1 (8%%)

Ti interessa visionare l'immobile?

Fissa un appuntamento  Fissa un appuntamento

Richiedi informazioni

Clicca su Leggi per aprire l'informativa
* Questi campi sono obbligatori

Calcola il tuo mutuo

Semplice e senza impegno
Anticipo

( % )
Mutuo

( % )

pochi semplici passi

inserisci i tuoi dati
Questionario completato
Grazie per aver richiesto un appuntamento senza impegno con un nostro Consulente del Credito e Assicurativo.

Hai inserito correttamente tutti i dati necessari e a breve riceverai una e-mail con un link da convalidare per inviare i tuoi dati.
Affiliato
Immobiliare Manziana Due Srl
Corso Vittorio Emanuele, 134 00066 Manziana (RM)

Il nostro staff


  • Matteo Saraconi
    Affiliato

  • Stefano Emili
    Responsabile

  • Bianca Manole
    Coordinatrice

  • Alessandro Montanucci
    Collaboratore

  • Alessia Morise
    Collaboratrice

  • Lorenzo Pisana
    Collaboratore

  • Valentina Riggi
    Collaboratrice

  • Alessia Tomita
    Coordinatrice
Corso Vittorio Emanuele, 134 00066 Manziana (RM)
Zona: Manziana-Oriolo Romano-Canale
Mostra su mappa
Orari: Dal Lunedì al Venerdì 09.00 alle 19.00 Sabato dalle 09.30 alle 18.00
Affiliato
Immobiliare Manziana Due Srl
Corso Vittorio Emanuele, 134 00066 Manziana (RM)

2026 Tecnocasa Franchising S.p.A. - P. IVA 08365160152 - Via Monte Bianco 60/A 20089 Rozzano (MI). Ogni agenzia ha un proprio titolare ed è autonoma. Privacy policy | Policy utilizzo | Cookie policy