Porzione di bifamiliare in vendita

Vejano, Località impresa
€ 205.000
Prezzo aggiornato
8 locali 8 locali
250 Mq 250 Mq
4 bagni 4 bagni

Porzione di bifamiliare in vendita

Vejano, Località impresa

Descrizione annuncio

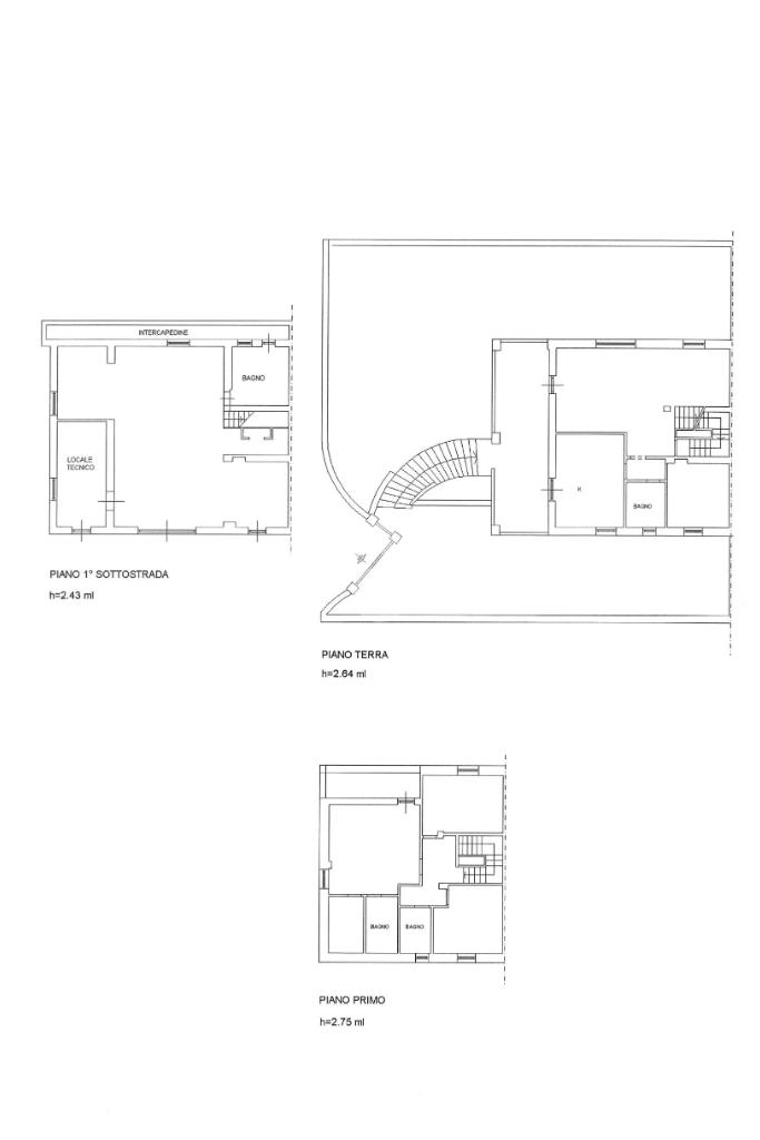
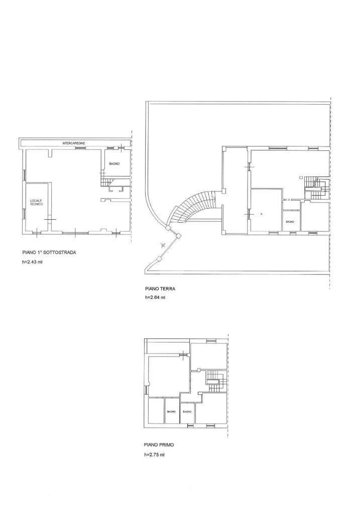
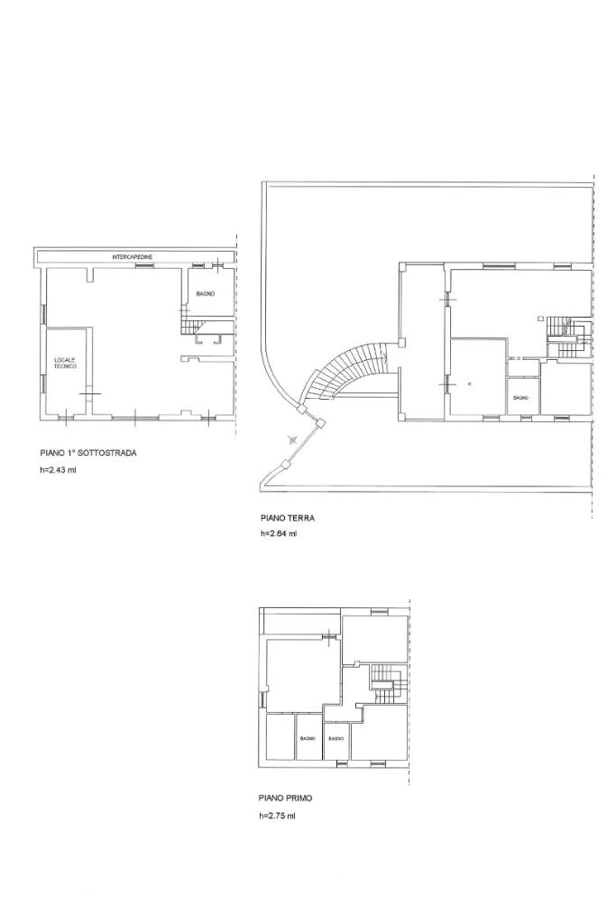
Villa indipendente con ascensore e giardino perimetrale.

In una zona residenziale tranquilla e vicina al centro del paese, proponiamo in vendita una porzione di villa indipendente di ampia metratura, dotata di ascensore interno e giardino privato.

Al piano terra rialzato si sviluppa la zona giorno, composta da un ampio salone, cucina abitabile con termocamino e uscita diretta sul portico, perfetta per chi ama vivere gli spazi esterni, oltre ad una camera da letto e un bagno finestrato con doccia.

Al primo piano, raggiungibile tramite ascensore o scala interna, troviamo una camera matrimoniale con bagno interno, balcone privato, cabina armadio, altre due camere da letto e un ulteriore bagno finestrato.

A completare la proprietà, il piano seminterrato, organizzato come ampia taverna con forno a legna, termocamino, bagno, cantina e cucina a vista, perfetto come ambiente conviviale o per ospiti.

La villa, ristrutturata e pronta da abitare, unisce comfort moderni, indipendenza e praticità grazie all’ascensore che collega tutti i livelli.

Contattaci per maggiori informazioni o per fissare una visita!

Mostra tutto

Nelle vicinanze

Scuole Scuole
Scuole
350 m
Farmacia Farmacia
Farmacia
490 m
Bar Bar
Zago Bar
290 m
Ristoranti Ristoranti
Al Capifuoco
340 m
Borgo di Sant'Orsio
900 m
Mostra tutto

Caratteristiche

Rif.:
61128717
Piano:
3 di 3 con ascensore (Piano su più livelli)
Posti auto:
2
Balconi:
1
Terrazzi:
1
Camere da letto:
4
Mostra tutto
Prezzo Prezzo
€ 205.000
Rata mutuo Rata mutuo
€ 968 / mese
Spese annue Spese annue
€ 0
Proponi il tuo prezzoProponi il tuo prezzo

Classe Energetica

Questo immobile è esente da classe energetica
Anno di costruzione:
1997
Riscaldamento:
Autonomo
Tipo impianto:
A radiatori
Tipo alimentazione:
GPL

Prezzo ridotto di €1 (7%%)

Ti interessa visionare l'immobile?

Fissa un appuntamento  Fissa un appuntamento

Richiedi informazioni

Clicca su Leggi per aprire l'informativa
* Questi campi sono obbligatori

Calcola il tuo mutuo

Semplice e senza impegno
Anticipo

( % )
Mutuo

( % )

pochi semplici passi

inserisci i tuoi dati
Questionario completato
Grazie per aver richiesto un appuntamento senza impegno con un nostro Consulente del Credito e Assicurativo.

Hai inserito correttamente tutti i dati necessari e a breve riceverai una e-mail con un link da convalidare per inviare i tuoi dati.
Affiliato
Immobiliare Manziana Due Srl
Corso Vittorio Emanuele, 134 00066 Manziana (RM)

Il nostro staff


  • Matteo Saraconi
    Affiliato

  • Stefano Emili
    Responsabile

  • Alessia Morise
    Collaboratrice

  • Lorenzo Pisana
    Collaboratore

  • Valentina Riggi
    Collaboratrice

  • Alessia Tomita
    Coordinatrice
Corso Vittorio Emanuele, 134 00066 Manziana (RM)
Zona: Manziana-Oriolo Romano-Canale
Mostra su mappa
Orari: Dal Lunedì al Venerdì 09.00 alle 19.00 Sabato dalle 09.30 alle 18.00
Affiliato
Immobiliare Manziana Due Srl
Corso Vittorio Emanuele, 134 00066 Manziana (RM)

2025 Tecnocasa Franchising S.p.A. - P. IVA 08365160152 - Via Monte Bianco 60/A 20089 Rozzano (MI). Ogni agenzia ha un proprio titolare ed è autonoma. Privacy policy | Policy utilizzo | Cookie policy